坐落地点:中国/浙江/西塘
面积:1100sqm
设计时间:2013.09
竣工时间:2016.01
设计单位:STUDIOQI
主持建筑师:戚山山(SHANSHANQI)
摄影:申强
开业时间:2016年2月7日

“饮居·九舍”不是一栋建筑,
而是一个关于城市设计的“建筑群”。
九舍是STUDIOQI创造ART-STAY理念
在中国的第一个实践项目,
位于西塘古镇。


ART-STAY指在一定空间中
挖掘和植入新锐艺术现象,
驻场及传播平台,
同时能提供复合旅宿关怀和
交流生活美学的开放式场所。

和传统分离式的旅宿空间不同,
九舍被植入了“群居生活”的概念,
并重新思考延续
“移动空间布局”
这一古典庭院的典型特征,
引入西塘原有建筑群处理正负空间、
构造立体空间体验的手法
建筑布局的促动,
空间极度压缩后又突然释放。

使得使用者在其间不仅
拥有街巷邻里间的空间状态,
也可以共享由空间语言营造的社会性。


当代模拟“传统古镇建筑”的做法大多直接套用
徽州民居的构成形式,
在基地中
根据功能塞下大体量大围合建筑体块,
加入粉墙黛瓦和马头墙等
较直观的建筑符号,
然后内部分离出庭院。



▲设计方案图
然而,对于江南典型建筑的思考
不应仅仅流于形式或元素,
特别是针对于本案周边有机堆积的古镇脉络,
以及相对局促的基地空间。


▲设计方案图
本设计尝试梳理西塘古镇脉络的既成逻辑,
提炼聚集、隐私、环境
乃至聚落的复合性理解。



▲设计方案图
桥接、错动等布局手法
增添了空间的兴奋点,
最终使用者于内部与外部、空地和房屋、
私密与开放空间产生呼应。

▲分解图
基地实际面积只有500平方米,
通过减法将空间分割成数个散落的庭院(负空间)以及建筑体块(正空间),
沿着基地边界摆放,
使这个不大的基地变得生动万象,
犹如玲珑古镇的惟妙惟肖。

▲分解图
建筑恰好形成九个房间-三个公共空间
(茶室,餐厅,棋牌室)
和六个私密空间(用作客房)。

▲分解图
此外建筑间以上下、
左右错动的方式来表现空间节奏感,
同时形成荫处、阳台,以及巷和廊;

▲概念图
庭院串联起建筑,
与一层休、居区结合紧密,
使住客在早晚使用频繁期都能充分亲近自然;

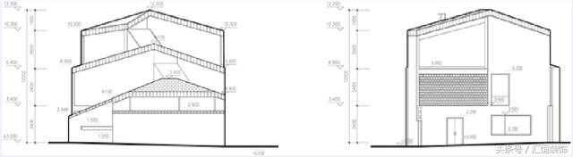
▲立面图1

▲立面图2
而在日间使用较频繁的品、饮区,
庭院和自家的瓦檐则成了登高望景的对象;

▲立面图3
另外,
在夜间易被大家所遗忘的
独立空间地下酒窖层面增加多项功能,
品酒,轰趴,私密性的加强与
上层建筑形成鲜明对比。

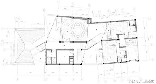
▲平面图1

▲平面图2

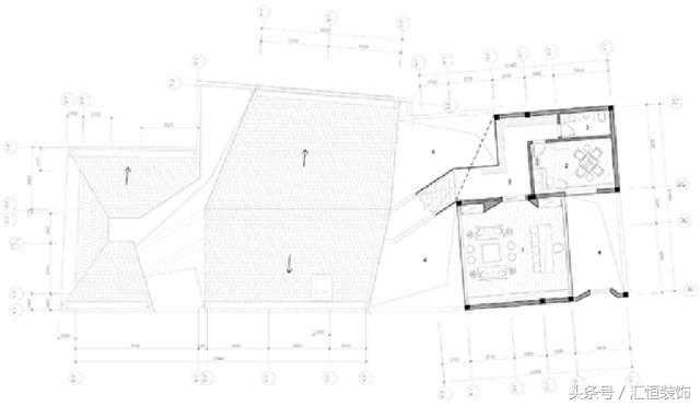
▲平面图3
设计植入了多重渗透的空间动态关联,
创造了和柯林·罗的《透明性》
(ColinRowe’sTransparency)一书中
空间现象、事件、视觉、行为层面的共鸣,
以及对于建筑的穿透力的思考。

▲平面图4

















